(Προς Πώληση) Κατοικία Οροφοδιαμέρισμα || Αθήνα Νότια/Παλαιό Φάληρο - 82 τ.μ, 2 Υ/Δ, 640.000€

Έτος Κατασκευής:
Τ.μ. Οικοπέδου:
Θέα:
Κατάσταση:
Parkings: 1
Θέρμανση: Αυτόνομη
Επίπεδα:
Κοντά σε:

Επιπλέον Χαρακτηριστικά

Αποθήκη Διαμπερές Προσόψεως Πόρτα Ασφαλείας Νεόδμητο Βεράντες Φωτεινό Πολυτελές Ασανσέρ Διπλά Τζάμια Boiler
 

Περιγραφή

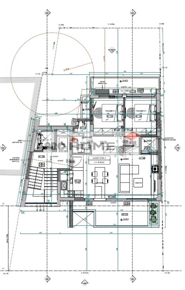
Στο Παλαιό Φάληρο διατίθεται υπό κατασκευή οροφοδιαμέρισμα επιφανείας 82 τ.μ., σχεδιασμένο με σύγχρονη αισθητική και λειτουργικότητα. Διαθέτει δύο υπνοδωμάτια, ένα ευρύχωρο μπάνιο με άνετη ντουζιέρα και φυσικό φωτισμό μέσω παραθύρου, καθώς και έναν ενιαίο χώρο καθιστικού, κουζίνας και τραπεζαρίας, που προσφέρει άνεση και αρμονική ροή στην καθημερινότητα. Στο διαμέρισμα υπάρχει επιπλέον δυνατότητα διαμόρφωσης master υπνοδωματίου με en-suite λουτρό. Η παράδοση του έργου προβλέπεται για την περίοδο Ιούνιο έως Σεπτέμβριο 2027.Η τοποθεσία αποτελεί σημαντικό πλεονέκτημα, καθώς οι παραλίες Μπάτης, Φλοίσβος και Έδεμ βρίσκονται σε απόσταση 350, 650 και 900 μέτρων αντίστοιχα, προσφέροντας εύκολη πρόσβαση στη θάλασσα. Το Κέντρο Πολιτισμού Ίδρυμα Σταύρος Νιάρχος απέχει μόλις 2,8 χλμ., ενώ η Μαρίνα Φλοίσβου βρίσκεται σε απόσταση 1 χλμ. Το εμπορικό κέντρο Παλαιού Φαλήρου στην Αγίου Αλεξάνδρου απέχει 750 μέτρα, ενώ κοντά βρίσκονται και σημαντικοί οδικοί άξονες όπως η Λεωφόρος Αμφιθέας (500 μ.) και η Λεωφόρος Συγγρού (1,7 χλμ.), εξασφαλίζοντας άμεση πρόσβαση προς Πειραιά, Γλυφάδα, Εθνική Οδό και το κέντρο της Αθήνας.Πρόκειται για μια πρόταση υψηλών προδιαγραφών, ιδανική για όσους αναζητούν σύγχρονη κατοικία με άνετους χώρους, σε εξαιρετική τοποθεσία κοντά στη θάλασσα και σε όλες τις κεντρικές υποδομές του Παλαιού Φαλήρου. ProHome real estate, Τηλ. Επικοινωνίας: 2109355540, email: info@prohome.gr

Αναλυτική Περιγραφή

Normal 0 false false false EL X-NONE X-NONE /* Style Definitions */ table.MsoNormalTable {mso-style-name:"Κανονικός πίνακας"; mso-tstyle-rowband-size:0; mso-tstyle-colband-size:0; mso-style-noshow:yes; mso-style-priority:99; mso-style-parent:""; mso-padding-alt:0cm 5.4pt 0cm 5.4pt; mso-para-margin-top:0cm; mso-para-margin-right:0cm; mso-para-margin-bottom:8.0pt; mso-para-margin-left:0cm; line-height:115%; mso-pagination:widow-orphan; font-size:12.0pt; font-family:"Aptos",sans-serif; mso-ascii-font-family:Aptos; mso-ascii-theme-font:minor-latin; mso-hansi-font-family:Aptos; mso-hansi-theme-font:minor-latin; mso-font-kerning:1.0pt; mso-ligatures:standardcontextual; mso-fareast-language:EN-US;}Στο Παλαιό Φάληρο διατίθεται υπόκατασκευή οροφοδιαμέρισμα επιφανείας 82 τ.μ., σχεδιασμένο με σύγχρονη αισθητικήκαι λειτουργικότητα. Διαθέτει δύο υπνοδωμάτια, ένα ευρύχωρο μπάνιο με άνετη ντουζιέρακαι φυσικό φωτισμό μέσω παραθύρου, καθώς και έναν ενιαίο χώρο καθιστικού,κουζίνας και τραπεζαρίας, που προσφέρει άνεση και αρμονική ροή στηνκαθημερινότητα. Στο διαμέρισμα υπάρχει επιπλέον δυνατότητα διαμόρφωσης masterυπνοδωματίου με en-suite λουτρό. Η παράδοση του έργου προβλέπεται για τηνπερίοδο Ιούνιο έως Σεπτέμβριο 2027.

Η τοποθεσία αποτελεί σημαντικόπλεονέκτημα, καθώς οι παραλίες Μπάτης, Φλοίσβος και Έδεμ βρίσκονται σε απόσταση350, 650 και 900 μέτρων αντίστοιχα, προσφέροντας εύκολη πρόσβαση στη θάλασσα.Το Κέντρο Πολιτισμού Ίδρυμα Σταύρος Νιάρχος απέχει μόλις 2,8 χλμ., ενώ η ΜαρίναΦλοίσβου βρίσκεται σε απόσταση 1 χλμ. Το εμπορικό κέντρο Παλαιού Φαλήρου στηνΑγίου Αλεξάνδρου απέχει 750 μέτρα, ενώ κοντά βρίσκονται και σημαντικοί οδικοίάξονες όπως η Λεωφόρος Αμφιθέας (500 μ.) και η Λεωφόρος Συγγρού (1,7 χλμ.),εξασφαλίζοντας άμεση πρόσβαση προς Πειραιά, Γλυφάδα, Εθνική Οδό και το κέντροτης Αθήνας.

Πρόκειται για μια πρόταση υψηλώνπροδιαγραφών, ιδανική για όσους αναζητούν σύγχρονη κατοικία με άνετους χώρους,σε εξαιρετική τοποθεσία κοντά στη θάλασσα και σε όλες τις κεντρικές υποδομέςτου Παλαιού Φαλήρου.

Χάρτης

Σημεία Ενδιαφέροντος

Κοντά σε:
Απόσταση από:

Στατιστικά Ακινήτου

Δημοσίευση Ακινήτου: 26 Νοε, 2025
Τελευταία ενημέρωση: 25 Φεβ, 2026
Συνολικές επισκέψεις:
Με Ενδιαφέρει Socialize it Δάνειο Εκτύπωση
Με Ενδιαφέρει το ακίνητο
Συμπληρώστε την φόρμα και πατήστε αποστολή. Τα πεδία με * είναι υποχρεωτικά
*
*

Εισάγετε τον κωδικό
Υπολογισμός Δανείου
Συμπληρώστε το Επιτόκιο (χωρίς το σύμβολο %} και τη Διάρκεια αποπληρωμής σε έτη. Αν επιθυμείτε μπορείτε να αλλάξετε και το ποσό
(%)
(έτη)
Χαρακτηριστικά
Περιοχή Παλαιό Φάληρο (Δ. Παλ. Φαλήρου)
Υποπεριοχή
Κατηγορία Κατοικίες
Τύπος Οροφοδιαμέρισμα
Τιμή 640.000€
Εμβαδόν (τ.μ.) 82
Τιμή/τ.μ. 7.805€
Υ/Δ 2
Μπάνια 1
Όροφος 7ος
Κωδικός 17919
e-agentsID 1862877
Ενεργειακό Πιστοποιητικό
Κατηγορία A
Επικοινωνία

proHOME Real Estate
Ελευθερίου Βενιζέλου 4Β, 171 21, Νέα Σμύρνη
(+30) 210 9355540,   (+30) 210 9355548
info@prohome.gr

Νόμισμα

Δείτε ακόμα

590.000 €


Οροφοδιαμέρισμα Προς Πώληση

proHOME Real Estate
Ελευθερίου Βενιζέλου 4Β, 171 21, Νέα Σμύρνη
(+30) 210 9355540,   (+30) 210 9355548
info@prohome.gr

(Προς Πώληση) Κατοικία Οροφοδιαμέρισμα || Αθήνα Νότια/Παλαιό Φάληρο - 82 τ.μ, 2 Υ/Δ, 640.000€


Χαρακτηριστικά

Έτος Κατασκευής: Τ.μ. Οικοπέδου: Θέα: Κατάσταση: Parkings: 1 Θέρμανση: Αυτόνομη Επίπεδα: Κοντά σε:
Περιοχή: Παλαιό Φάληρο (Δ. Παλ. Φαλήρου) Υποπεριοχή:
Κατηγορία: Κατοικίες Τύπος: Οροφοδιαμέρισμα
Τιμή: 640.000€ Εμβαδόν (τ.μ.): 82
Τιμή/τ.μ. 7.805€ Υ/Δ: 2
Μπάνια: 1 Όροφος: 7ος
Κωδικός: 17919

Επιπλέον Χαρακτηριστικά

Αποθήκη Διαμπερές Προσόψεως Πόρτα Ασφαλείας Νεόδμητο Βεράντες Φωτεινό Πολυτελές Ασανσέρ Διπλά Τζάμια Boiler
 

Περιγραφή

Στο Παλαιό Φάληρο διατίθεται υπό κατασκευή οροφοδιαμέρισμα επιφανείας 82 τ.μ., σχεδιασμένο με σύγχρονη αισθητική και λειτουργικότητα. Διαθέτει δύο υπνοδωμάτια, ένα ευρύχωρο μπάνιο με άνετη ντουζιέρα και φυσικό φωτισμό μέσω παραθύρου, καθώς και έναν ενιαίο χώρο καθιστικού, κουζίνας και τραπεζαρίας, που προσφέρει άνεση και αρμονική ροή στην καθημερινότητα. Στο διαμέρισμα υπάρχει επιπλέον δυνατότητα διαμόρφωσης master υπνοδωματίου με en-suite λουτρό. Η παράδοση του έργου προβλέπεται για την περίοδο Ιούνιο έως Σεπτέμβριο 2027.Η τοποθεσία αποτελεί σημαντικό πλεονέκτημα, καθώς οι παραλίες Μπάτης, Φλοίσβος και Έδεμ βρίσκονται σε απόσταση 350, 650 και 900 μέτρων αντίστοιχα, προσφέροντας εύκολη πρόσβαση στη θάλασσα. Το Κέντρο Πολιτισμού Ίδρυμα Σταύρος Νιάρχος απέχει μόλις 2,8 χλμ., ενώ η Μαρίνα Φλοίσβου βρίσκεται σε απόσταση 1 χλμ. Το εμπορικό κέντρο Παλαιού Φαλήρου στην Αγίου Αλεξάνδρου απέχει 750 μέτρα, ενώ κοντά βρίσκονται και σημαντικοί οδικοί άξονες όπως η Λεωφόρος Αμφιθέας (500 μ.) και η Λεωφόρος Συγγρού (1,7 χλμ.), εξασφαλίζοντας άμεση πρόσβαση προς Πειραιά, Γλυφάδα, Εθνική Οδό και το κέντρο της Αθήνας.Πρόκειται για μια πρόταση υψηλών προδιαγραφών, ιδανική για όσους αναζητούν σύγχρονη κατοικία με άνετους χώρους, σε εξαιρετική τοποθεσία κοντά στη θάλασσα και σε όλες τις κεντρικές υποδομές του Παλαιού Φαλήρου. ProHome real estate, Τηλ. Επικοινωνίας: 2109355540, email: info@prohome.gr

Στατιστικά Ακινήτου

Δημοσίευση Ακινήτου: 26 Νοε, 2025
Τελευταία ενημέρωση: 25 Φεβ, 2026
Συνολικές επισκέψεις:

Loading...