(Προς Πώληση) Αξιοποιήσιμη Γη Οικόπεδο || Ανατολική Αττική/Άγιος Στέφανος - 1.150 τ.μ, 550.000€

Έτος Κατασκευής:
Σ.Δ.:
Σ.Κ.: 40
Χρήση Γης: Αμιγής Κατοικία
Σχέδιο Πόλεως: Εντός σχεδίου
Κοντά σε:

Επιπλέον Χαρακτηριστικά

Προσόψεως Οικοδομήσιμο Με άδεια οικοδομής Επίπεδο Κατάλληλο για αντιπαροχή
 

Περιγραφή

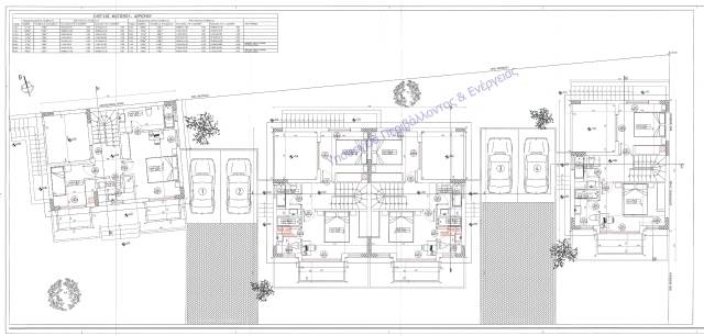
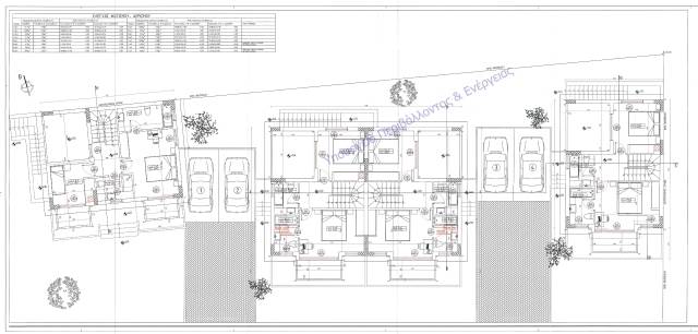
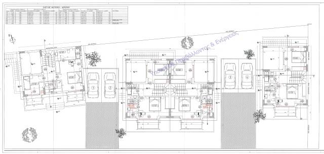
Άγιος Στέφανος στην περιοχή Καπιτένια - Αγία Σκέπη, κοντά στην λεωφόρο Μαραθώνος, διατίθεται οικοδομήσιμο οικόπεδο με ενεργή άδεια οικοδομής μέχρι το 2025. Το οικόπεδο έχει εμβαδόν 1149,72 τ.μ. και επιτρεπόμενη δόμηση 459,88 τ.μ. σε τέσσερα κτήρια. Σύμφωνα με την άδεια οικοδομής, τα κτήρια έχουν τις εξής διαστάσεις:• Κτήριο 1: Υπόγειο 61,64 τ.μ., Ισόγειο 50,42 τ.μ., 1ος Όροφος 51,72 τ.μ.• Κτήριο 2: Υπόγειο 117,64 τ.μ., Ισόγειο 98,14 τ.μ., 1ος Όροφος 98,14 τ.μ. (2 μεζονέτες)• Κτήριο 3: Υπόγειο 59,92 τ.μ., Ισόγειο 50,17 τ.μ., 1ος Όροφος 50,17 τ.μ.Το οικόπεδο διατίθεται και για αντιπαροχή.Διαθέσιμος ολόκληρος ο φάκελος του ακινήτου.Δεκτές συνεργασίες διάθεσης με επιμερισμό.Τιμή πώλησης 550.000 €(κωδ.5064)  τηλ.2109355540 , info@prohome.gr   http://www.prohome.gr

Αναλυτική Περιγραφή

Άγιος Στέφανος στην περιοχή Καπιτένια - Αγία Σκέπη, κοντάστην λεωφόρο Μαραθώνος, διατίθεται οικοδομήσιμο οικόπεδο με ενεργή άδειαοικοδομής μέχρι το 2025. Το οικόπεδο έχει εμβαδόν 1149,72 τ.μ. και επιτρεπόμενηδόμηση 459,88 τ.μ. σε τέσσερα κτήρια.Σύμφωνα με την άδεια οικοδομής, τα κτήρια έχουν τις εξήςδιαστάσεις:

· Κτήριο 1: Υπόγειο 61,64 τ.μ., Ισόγειο 50,42τ.μ., 1ος Όροφος 51,72 τ.μ.

· Κτήριο 2: Υπόγειο 117,64 τ.μ., Ισόγειο 98,14τ.μ., 1ος Όροφος 98,14 τ.μ. (2 μεζονέτες)

· Κτήριο 3: Υπόγειο 59,92 τ.μ., Ισόγειο 50,17τ.μ., 1ος Όροφος 50,17 τ.μ.

Το οικόπεδο διατίθεται και για αντιπαροχή.

Διαθέσιμος ολόκληρος ο φάκελος του ακινήτου.

Δεκτές συνεργασίες διάθεσης με επιμερισμό.

Τιμή πώλησης 550.000 €

Χάρτης

Σημεία Ενδιαφέροντος

Κοντά σε:
Απόσταση από:

Στατιστικά Ακινήτου

Δημοσίευση Ακινήτου: 10 Απρ, 2025
Τελευταία ενημέρωση: 20 Οκτ, 2025
Συνολικές επισκέψεις:
Με Ενδιαφέρει Socialize it Δάνειο Εκτύπωση
Με Ενδιαφέρει το ακίνητο
Συμπληρώστε την φόρμα και πατήστε αποστολή. Τα πεδία με * είναι υποχρεωτικά
*
*

Εισάγετε τον κωδικό
Υπολογισμός Δανείου
Συμπληρώστε το Επιτόκιο (χωρίς το σύμβολο %} και τη Διάρκεια αποπληρωμής σε έτη. Αν επιθυμείτε μπορείτε να αλλάξετε και το ποσό
(%)
(έτη)
Χαρακτηριστικά
Περιοχή Άγιος Στέφανος (Δ. Διονύσου)
Υποπεριοχή Καπιτένια
Κατηγορία Αξιοποιήσημη Γη
Τύπος Οικόπεδο
Τιμή 550.000€
Εμβαδόν (τ.μ.) 1149,72
Τιμή/τ.μ. 478€
Κωδικός 16832
e-agentsID 1813287
Επικοινωνία

proHOME Real Estate
Ελευθερίου Βενιζέλου 4Β, 171 21, Νέα Σμύρνη
(+30) 210 9355540,   (+30) 210 9355548
info@prohome.gr

Νόμισμα

proHOME Real Estate
Ελευθερίου Βενιζέλου 4Β, 171 21, Νέα Σμύρνη
(+30) 210 9355540,   (+30) 210 9355548
info@prohome.gr

(Προς Πώληση) Αξιοποιήσιμη Γη Οικόπεδο || Ανατολική Αττική/Άγιος Στέφανος - 1.150 τ.μ, 550.000€


Χαρακτηριστικά

Έτος Κατασκευής: Σ.Δ.: Σ.Κ.: 40 Χρήση Γης: Αμιγής Κατοικία Σχέδιο Πόλεως: Εντός σχεδίου Κοντά σε:
Περιοχή: Άγιος Στέφανος (Δ. Διονύσου) Υποπεριοχή: Καπιτένια
Κατηγορία: Αξιοποιήσημη Γη Τύπος: Οικόπεδο
Τιμή: 550.000€ Εμβαδόν (τ.μ.): 1149,72
Τιμή/τ.μ. 478€ Υ/Δ:
Μπάνια: Όροφος:
Κωδικός: 16832

Επιπλέον Χαρακτηριστικά

Προσόψεως Οικοδομήσιμο Με άδεια οικοδομής Επίπεδο Κατάλληλο για αντιπαροχή
 

Περιγραφή

Άγιος Στέφανος στην περιοχή Καπιτένια - Αγία Σκέπη, κοντά στην λεωφόρο Μαραθώνος, διατίθεται οικοδομήσιμο οικόπεδο με ενεργή άδεια οικοδομής μέχρι το 2025. Το οικόπεδο έχει εμβαδόν 1149,72 τ.μ. και επιτρεπόμενη δόμηση 459,88 τ.μ. σε τέσσερα κτήρια. Σύμφωνα με την άδεια οικοδομής, τα κτήρια έχουν τις εξής διαστάσεις:• Κτήριο 1: Υπόγειο 61,64 τ.μ., Ισόγειο 50,42 τ.μ., 1ος Όροφος 51,72 τ.μ.• Κτήριο 2: Υπόγειο 117,64 τ.μ., Ισόγειο 98,14 τ.μ., 1ος Όροφος 98,14 τ.μ. (2 μεζονέτες)• Κτήριο 3: Υπόγειο 59,92 τ.μ., Ισόγειο 50,17 τ.μ., 1ος Όροφος 50,17 τ.μ.Το οικόπεδο διατίθεται και για αντιπαροχή.Διαθέσιμος ολόκληρος ο φάκελος του ακινήτου.Δεκτές συνεργασίες διάθεσης με επιμερισμό.Τιμή πώλησης 550.000 €(κωδ.5064)  τηλ.2109355540 , info@prohome.gr   http://www.prohome.gr

Στατιστικά Ακινήτου

Δημοσίευση Ακινήτου: 10 Απρ, 2025
Τελευταία ενημέρωση: 20 Οκτ, 2025
Συνολικές επισκέψεις:

Loading...